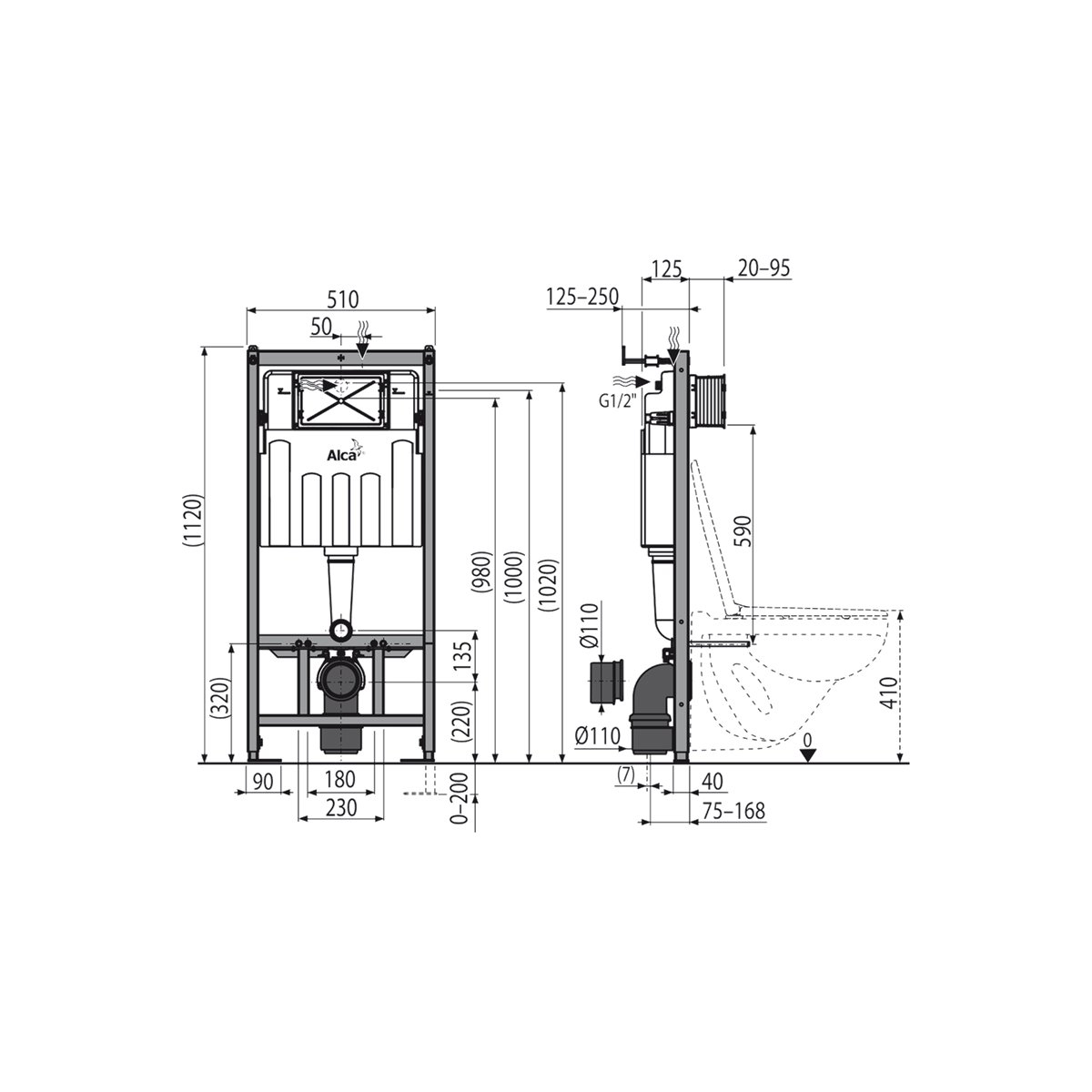
Область применения:-Для подвесных унитазов-Для монтажа к несущей стене или в гипсокартонную конструкцию-Для пола с толщиной стяжки 0 – 200 мм с возможностью регулировки-Для установки подвесного унитаза с интервалом крепления 180 мм или 230 ммСвойства:-Содержит дозатор таблеток для унитаза-Конструкция рамы позволяет производить монтаж к профилю для гипсокартона, предназначенного для этих целей или к несущей стене-Подвижной держатель для стокового колена, устанавливаемый в восьми положениях на расстоянии 0–93 мм-Угловой вентиль с возможностью подключения к системе трубопроводов Mepla-Установленная система закрывается гипсокартонными листами и не нуждается в дополнительных крепёжных элементах-Конструкция полистирольной изоляции, предотвращает процесс конденсации на поверхности бачка и ослабляет вибрацию в строительной конструкции-Возможность установки кронштейна с переходом DG1/2", для подключения сиденья-биде или бидетты-Двойной смыв, независимо регулируемый, с гигиеническим резервом-Подходит для установки пневматического или сенсорного смыва-Совместима со всеми кнопками управления Alcaplast-Возможность сервиса без использования инструментов-Подвод воды к задней стенке бачка или вверху бачка-Бачок сделан из одного фрагмента полипропилена, что обеспечивает его 100% герметичность-Крышка сервисного отверстия облегчает монтаж и защищает от влаги и грязи-Регулируемые выдвижные ноги в диапазоне 0 – 200 мм-Монтажная глубина рукава регулируется от 20 до 95 мм-Монтажная глубина – 125 мм, со стоковым коленом – 160 мм-Материал несущей конструкции: металл обработанный порошковой краскойТехнические параметры:Подвод воды к задней стенке бачка или вверху бачка с помощью монтажных отверстий G1/2"Рабочий диапазон давления 0,05 – 0,8 МПаРекомендуемый диапазон давления 0,3 – 0,5 МПаБольшой смыв 6 – 9 лМалый смыв 2,5 – 3,5 лСтандартные настройки большого смыва 6 лСтандартные настройки малого смыва 3 лГигиенический резерв 3 лОбъем воды в бачке 9 лНесущая способность 400 кгСодержание комплекта:-Бачок с впускным и сливным механизмом-Самонесущая рама-Резьбовое соединение 1/2" для подвода воды со встроенным угловым вентилем Schell 1/2"–3/8"-Толкатели механизма 2 шт.-Монтажный набор: шуруп Ø8×60 – 4 шт., дюбель Ø12 – 4 шт.-Крепежный материал для крепления унитаза: шпилька М12 – 2 шт., шайба – 4 шт., колпачок – 2 шт., гайка – 2 шт., гофрированный рукав – 2 шт.-Стоковое колено HT90/110, полипропилен-Прокладка, патрубок полипропилен, манжета-Прокладка, патрубок полипропилен, уплотнение патрубка-Монтажный комплект крышек для защиты технических отверстий при установке системы-Рукав сервисного отверстия легко укорачивается, в комплекте 4 шурупа для его крепежа
Характеристики
Базовая единица
шт
Страна производитель
Чехия
Форма
прямоугольная
Тип установки
в стену
Управление
механическая кнопка
Сливной механизм
две кнопки (режим эконом)
Наличие бачка
есть
Тип выпуска
горизонтальный
Подвод
снизу
Отзывы
Оставить отзыв
Загрузка отзывов...
